571 County Road 2215
Daingerfield Isd, Tx 75638


For more information or to schedule a showing, click here.
Price: $319,900
Property Type: residential
Status: Active
MLS #: 20262134
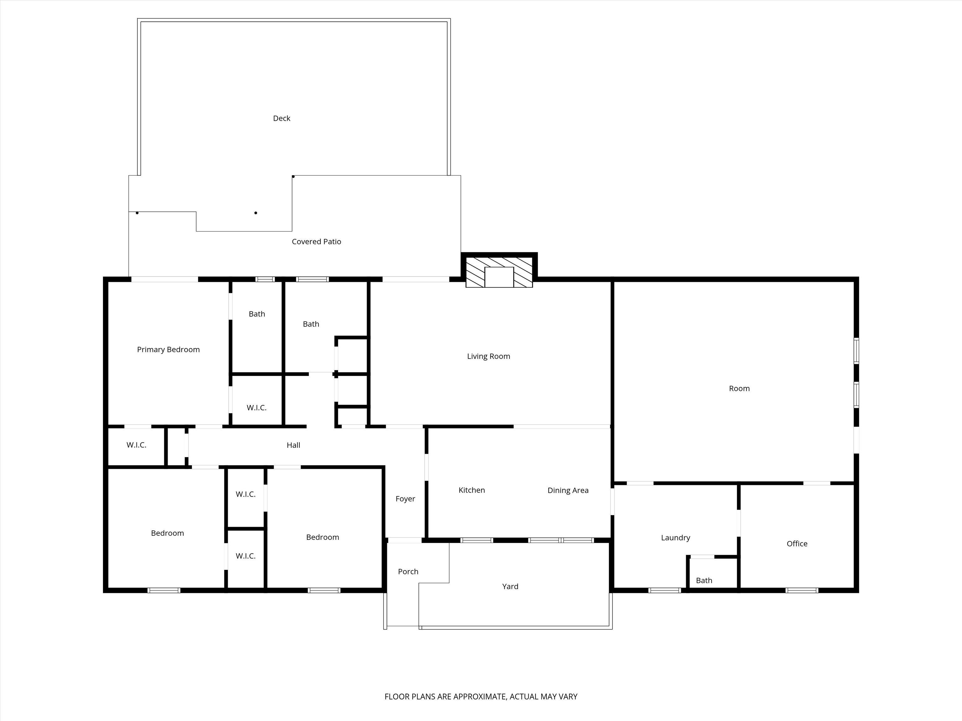
Charming Country Retreat on 6.809 Acres — Endless Potential! Step into this 1979-built gem where classic comfort meets room to grow. This 3-bedroom, 2.5-bath home also features a large office/fourth bedroom and an enormous game room — perfect for family fun, hobbies, or a home gym. Set on a total of 6.809 acres (3.000 acres with the home plus an additional 2.809 acres directly across the street), this property offers privacy, space, and opportunity. Highlights: - 3 bedrooms + office/4th bedroom and huge game room — flexible floorplan. - 2.5 bathrooms for family convenience. - Cozy fireplace for cooler evenings. - Covered back porch overlooking a fenced backyard — great for pets and entertaining. - 2-car carport and an oversized driveway with easy turnaround — guest-friendly. - A/C replaced in 2022; hot water heater replaced June 2025 — modernized systems you’ll appreciate. - Refrigerator, washer, dryer, and pool table convey — buyer’s choice: everything is optional to convey. - Needs some updates — excellent value-add opportunity for cosmetic finishes, systems upgrades, or expansion. Why you’ll love it: This property blends country acreage with functional living spaces — imagine weekend barbecues on the covered porch, movie nights by the fireplace, and a game room that becomes the house’s heart. The split acreage across the street provides potential for livestock, gardens, or future development possibilities. Call to action: Ready to see the potential in person? Schedule a showing today — opportunities like this, with acreage and flexible living space, don’t last long!
Area: Daingerfield-lone Star Isd
Year Built: 1979
Bedrooms: 3
Bathrooms: 2
1/2 Bathrooms: 1
Garage: 2
Acres: 6.809

Features

CONSTRUCTION
  • Slab Foundation
  • Brick
Heating
  • Central Electric
Cooling
  • Central Electric
InteriorFeatures
  • Shades/Blinds
  • Smoke Detectors
Fireplaces
  • One Woodburning
DiningRoom
  • Breakfast Bar
UTILITY TYPE
  • Electric
WATER/SEWER
  • Well
  • Septic Tank
  • Community
Style
  • Ranch
ROOM DESCRIPTION
  • Game Room
  • Office
  • Utility Room
  • Bonus Room
  • 1 Living Area
KITCHEN EQUIPMENT
  • Elec Range/Oven
  • Dishwasher
  • Refrigerator
  • Washer
  • Dryer
ExteriorFeatures
  • Porch
  • Deck Covered
FENCING
  • Barbwire Fence
  • Partial Fence
DRIVEWAY
  • Gravel

Courtesy: • TEXAS REAL ESTATE EXECUTIVES, THE DANIELS GROUP - GILMER • 903-680-4663

Users may not reproduce or redistribute the data found on this site. The data is for viewing purposes only. Data is deemed reliable, but is not guaranteed accurate by the MLS or LAAR.

This content last refreshed on 04/19/2026 08:30 PM. Some properties which appear for sale on this web site may subsequently have sold or may no longer be available.