237 County Road 2937
Hsisd, Tx 75656


For more information or to schedule a showing, click here.
Price: $299,900
Property Type: residential
Status: Active
MLS #: 20261629
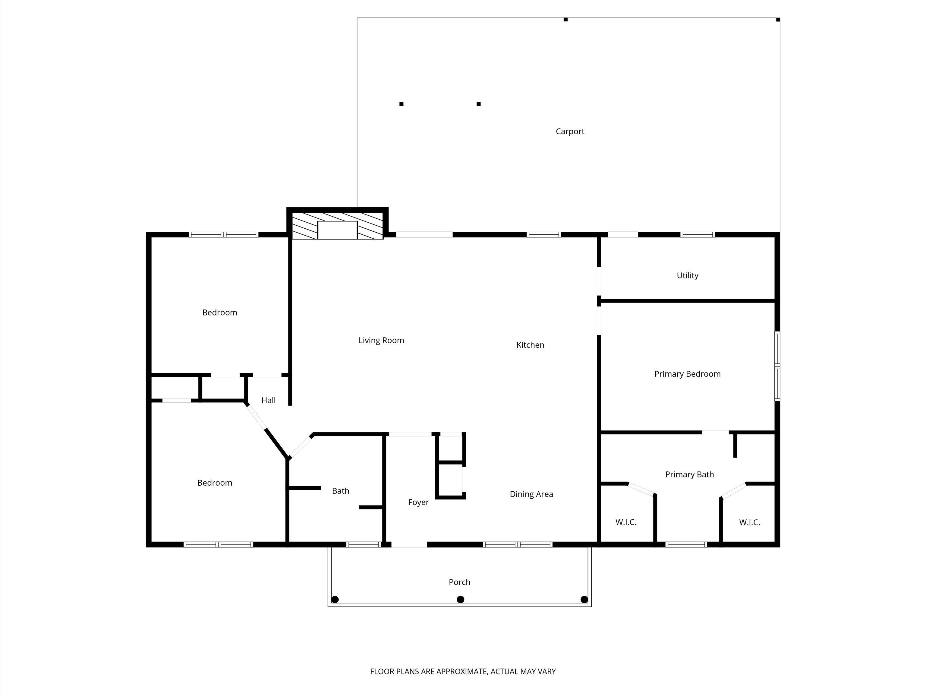
Enjoy peaceful country living in this beautiful three-bedroom, two-bath brick home sitting on 6.21 acres in Hughes Springs. Built in 2001 and thoughtfully maintained, this 1,800-square-foot home offers a comfortable open layout with durable flooring in the main living areas and cozy carpet in the bedrooms. The spacious kitchen features plenty of cabinet space, an L-shaped counter with bar seating, and newer appliances, making it perfect for family meals and entertaining guests. The inviting living room includes a wood-burning fireplace with an insert, creating the perfect spot for cozy evenings. The primary suite is a standout with a large bedroom, double walk-in closets, and a private bath featuring a vanity area, abundant cabinetry, a walk-in shower, a soaking tub, and plenty of countertop space. Step outside to enjoy the peaceful surroundings where you’ll find a large, covered carport and a concrete patio area ideal for gatherings or additional parking. There is a workshop and another metal carport beside it. The property is accented with mature pine trees, a pond, and a backyard that backs up to wooded areas, offering privacy and beautiful views. If you’re looking for space, comfort, and a true country setting just minutes from town, this one beautiful brick home is ready to welcome your family home.
Area: Cass County
Year Built: 2001
Bedrooms: 3
Bathrooms: 2
Garage: 2
Acres: 6.21

Features

CONSTRUCTION
  • Slab Foundation
  • Brick Veneer
Heating
  • Central Electric
Cooling
  • Central Electric
InteriorFeatures
  • Shades/Blinds
  • Carpeting
  • Paneling
  • Ceiling Fan
ExteriorFeatures
  • Workshop
  • Porch
  • Gutter(s)
Fireplaces
  • One Woodburning
  • Living Room
  • Blower
DiningRoom
  • Breakfast Bar
  • Kitchen/Eating Combo
WATER/SEWER
  • Public Water
  • Conventional Septic
UTILITY TYPE
  • COOP Electric
KITCHEN EQUIPMENT
  • Elec Range/Oven
  • Free Standing
  • Dishwasher
ExistingStructures
  • Work Shop

Courtesy: • TEXAS REAL ESTATE EXECUTIVES, THE DANIELS GROUP - GILMER • 903-680-4663

Users may not reproduce or redistribute the data found on this site. The data is for viewing purposes only. Data is deemed reliable, but is not guaranteed accurate by the MLS or LAAR.

This content last refreshed on 04/20/2026 10:00 AM. Some properties which appear for sale on this web site may subsequently have sold or may no longer be available.