2693 Richie St
New Diana Isd, Tx 75640


For more information or to schedule a showing, click here.
Price: $229,900
Property Type: residential
Status: Active
MLS #: 20260808
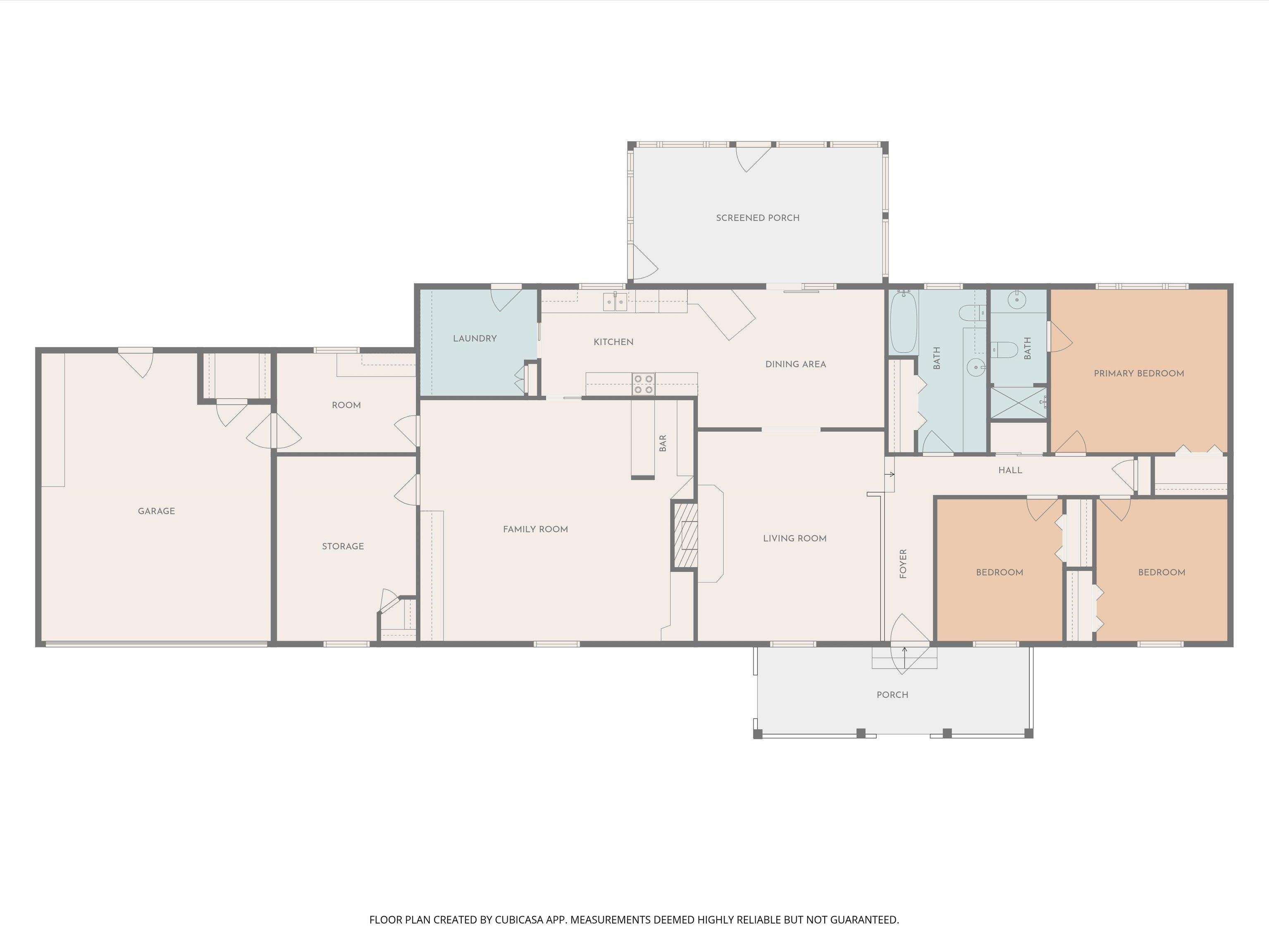
Take a look at this large custom home located 15 minutes outside of Longview. Located on a 1/2 acre lot in a mature neighborhood. This home offers high ceilings in the main living areas, a formal living room as well as a den located off the kitchen that would make a great game room or place for entertaining. There is also a dedicated sewing room that could make an ideal place to work from home. On the other end of the house you step up to find 3 bedrooms and 2 bathrooms. Out back you have a screened in porch that overlooks your spacious backyard. There is also a small outbuilding that would make for great storage, workspace or maybe a small cottage. This home is well taken care of and with minor updates it could make a great forever home! Come out and take a look to see what all this home has to offer.
Area: New Diana Isd
Year Built: 1973
Bedrooms: 4
Bathrooms: 2
Garage: 2
Acres: 0.51

Features

CONSTRUCTION
  • Slab Foundation
  • Brick
Heating
  • Other/See Remarks
Cooling
  • Other
InteriorFeatures
  • Tile Flooring
  • High Ceilings
  • Ceiling Fan
ExteriorFeatures
  • Patio Covered
  • Storage Building
  • Workshop
  • Screened Porch
Fireplaces
  • One Woodburning
DiningRoom
  • Breakfast Bar
  • Kitchen/Eating Combo
UTILITY TYPE
  • Rural Electric
WATER/SEWER
  • Public Water
  • Public Sewer
Style
  • Traditional
  • Spanish/Mediterranean
ROOM DESCRIPTION
  • Separate Formal Living
  • Den
  • Game Room
  • Office
  • Family Room
  • Utility Room
  • 2 Living Areas
FENCING
  • Metal Fence
DRIVEWAY
  • Concrete
ExistingStructures
  • Storage Buildings

Courtesy: • TEXAS REAL ESTATE EXECUTIVES, THE DANIELS GROUP - GILMER • 903-680-4663

Users may not reproduce or redistribute the data found on this site. The data is for viewing purposes only. Data is deemed reliable, but is not guaranteed accurate by the MLS or LAAR.

This content last refreshed on 04/21/2026 08:00 AM. Some properties which appear for sale on this web site may subsequently have sold or may no longer be available.