22975 Hwy 154
Harleton Isd, Tx 75640


For more information or to schedule a showing, click here.
Price: $210,000
Property Type: residential
Status: Active
MLS #: 20260033
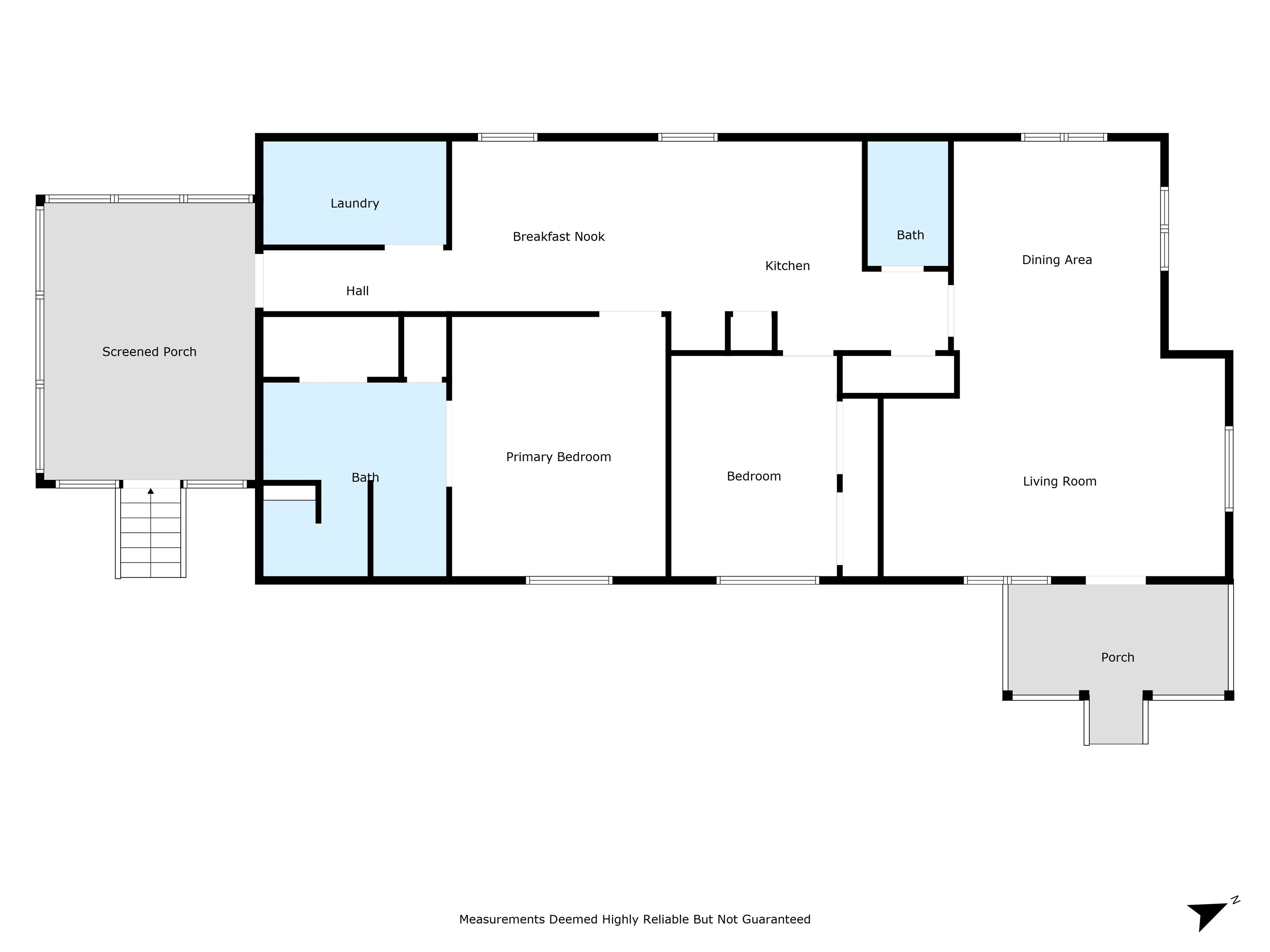
This beautiful home has 2/2/2, 1680 sf and sits on 1.56 acres in Harleton ISD. The home features a huge kitchen, large primary bedroom and a large living area. In the kitchen you will find a gas stove, updated cabinets and counter-tops and plenty of space for all your storage and cooking needs. The primary bedroom features an updated en suite with a tiled walk-in shower and a large closet. The living room and dining area features an open floor plan with lots of natural light and room for the whole family. Step outside on the huge screened back deck and enjoy the view of the property, relax for morning coffee or entertain friends. New water heater 3/2026, newly renovated primary bathroom shower 3/2026.
Area: Harltn Isd 221
Year Built: 1950
Bedrooms: 2
Bathrooms: 2
Garage: 2
Acres: 1.56

Features

Heating
  • Central Electric
Cooling
  • Central Electric
Fireplaces
  • None
UTILITY TYPE
  • Electric
  • Gas
Style
  • Traditional
CONSTRUCTION
  • Stone/Rock
  • Siding
WATER/SEWER
  • Aerobic Septic System
  • Community
ROOM DESCRIPTION
  • Separate Formal Living
  • Family Room
  • Utility Room
  • 1 Living Area
DiningRoom
  • Separate Formal Dining
  • Kitchen/Eating Combo
KITCHEN EQUIPMENT
  • Gas Range/Oven
  • Dishwasher
FENCING
  • Wood Fence
ExistingStructures
  • Storage Buildings

Courtesy: • TEXAS REAL ESTATE EXECUTIVES - LONGVIEW • 903-297-0591

Users may not reproduce or redistribute the data found on this site. The data is for viewing purposes only. Data is deemed reliable, but is not guaranteed accurate by the MLS or LAAR.

This content last refreshed on 04/19/2026 11:00 AM. Some properties which appear for sale on this web site may subsequently have sold or may no longer be available.